產品介紹
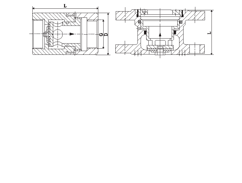
該短閥由閥體、活塞、壓蓋及0型圈、密封墊等零件組成。該閥在閥門內腔設置浮動式活塞,利用活塞兩端不同的橫截面積,從而形成進水與出水的壓力差,達到減壓目的。該產品即減“動壓”又減“靜壓”,結構嚴謹、運行流暢、體積小巧重量輕,便于安裝與維護,采用先進的工藝制造與表面處理,防腐防銹對水質絕無污染。
本公司提供的標準壓力比:2.1, 3.1, 4.1, 5.1, 5.2等,并可根據用戶的要求設計特殊比例減壓閥。



該短閥由閥體、活塞、壓蓋及0型圈、密封墊等零件組成。該閥在閥門內腔設置浮動式活塞,利用活塞兩端不同的橫截面積,從而形成進水與出水的壓力差,達到減壓目的。該產品即減“動壓”又減“靜壓”,結構嚴謹、運行流暢、體積小巧重量輕,便于安裝與維護,采用先進的工藝制造與表面處理,防腐防銹對水質絕無污染。
本公司提供的標準壓力比:2.1, 3.1, 4.1, 5.1, 5.2等,并可根據用戶的要求設計特殊比例減壓閥。


